- 170 000 £
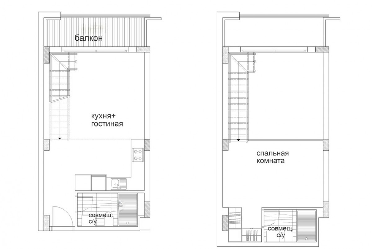
Апартаменты 1+1 дуплекс пентхаус состоят из:
Первый этаж :
- гостиная, совмещённая с кухней;
- 1 совмещённый санузел;
- балкон;
Второй этаж:
- 1 спальная комната;
- терраса на крыше.
Предоставляется беспроцентная рассрочка. В цену объектов недвижимости включена полная отделка, сантехника, встроенная мебель (все спальни оборудованы встроенными шкафами, на кухне предусмотрена встроенная кухня). В отделке использованы эко-материалы премиум класса – дерево, натуральный камень.
Установлена система давления воды (центральное водоснабжение), окна с двойным остеклением, система кондиционирования. В проекте предусмотрена парковка, интернет-инфраструктура и спутниковая инфраструктура, бассейн, ландшафтный дизайн. Комплекс обслуживает управляющая компания.
Комплекс ID 087 расположился на большом участке земли недалеко от оборудованного пляжа. Всего в 10 минутах езды расположен популярный Korineum Golf & Beach Resort. В 20 минутах езды находится город Кирения (Гирне), предлагая развитую инфраструктуру города (большой выбор магазинов, ресторанов и кафе, супермаркет, аптеки, банки, рынок, школы и детские сады, университеты и многое другое).
Расстояние:
- Кирения- 20 мин
- Аэропорт Эрджан – 50 км
- Аэропорт Ларнака – 70 км
- Гольф-клуб/пляж – 10 мин
-
Центральная спутниковая система
-
Центральная система кондиционирования
-
Центральная интернет система
-
Фитнес центр
-
Ресторан
-
Пикниковая зона
-
Парковка
-
Охрана 24/7
-
Ландшафтный дизайн
-
Кафе
-
Зеленая зона
-
Детский бассейн с горками
-
Детская площадка
-
Велопешеходные дорожки
-
Бассейн
-
Бар
50 % - 1й взнос
50 % - предоставляется беспроцентная рассрочка на 12 месяцев.







