- 115 000 £
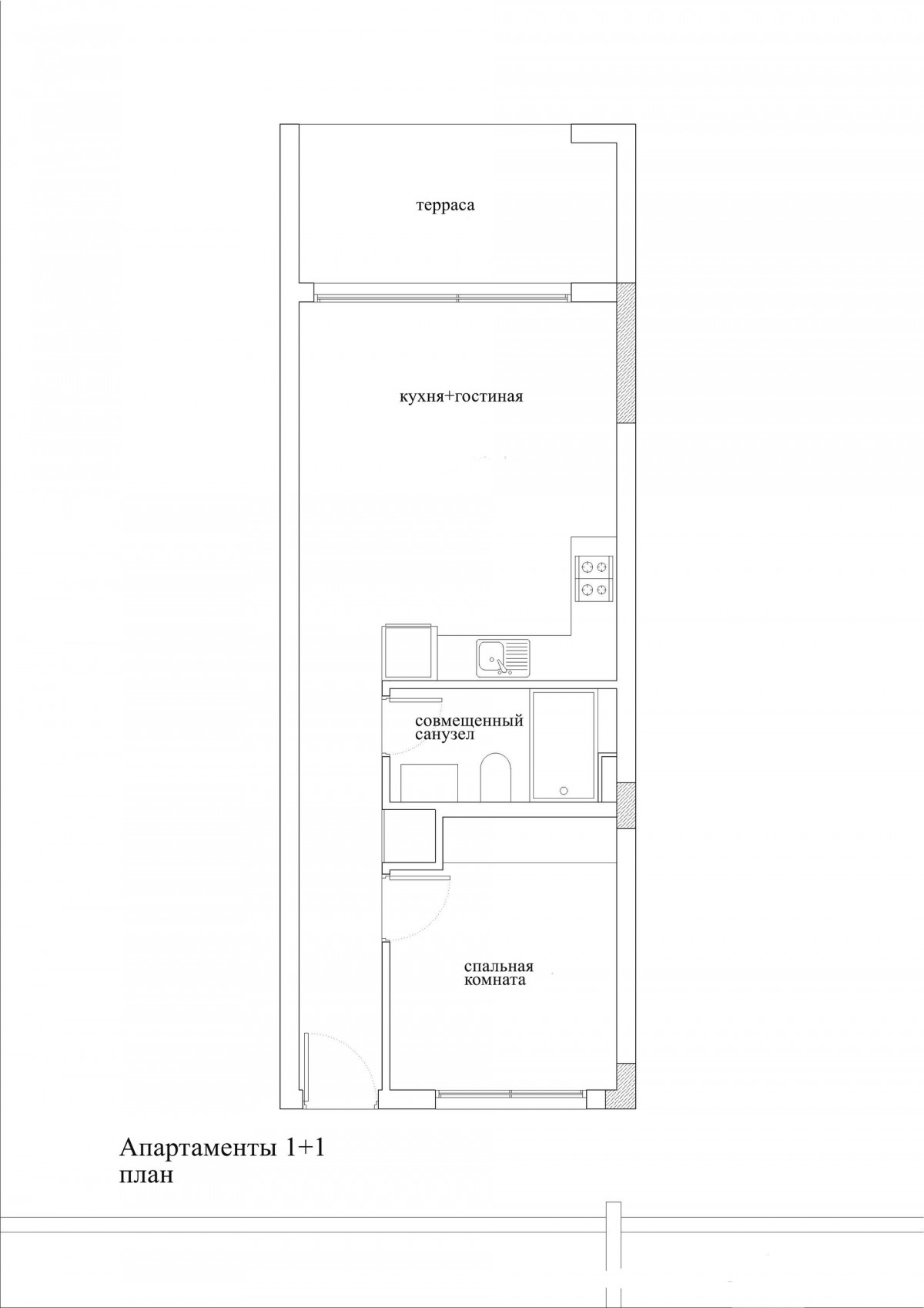
Апартаменты 1+1 состоят из:
- гостиная совмещённая с кухней
- 1 спальная комната
- совмещённый санузел
- терраса.
На апартаменты предоставляется беспроцентная рассрочка. В цену квартир и бунгало включена полная отделка, встроенная мебель (все спальни оборудованы встроенными шкафами, на кухне предусмотрена встроенная кухня со столешницами из гранита), сантехника. Установлены система давления воды, окна с двойным стеклопакетом, межкомнатные двери, теплый пол в ванной. Проект выполнен в современном стиле, используются материалы высокого качества.
На территории комплекса расположен тренажерный зал, сауна, ресторан, общий бассейн с зонами отдыха и кафе, крытый бассейн, оборудован подземный паркинг. Всего в 15 минутах езды находится популярный Korineum Golf & Beach Resort. Город Эсентепе, находящийся в 10 минутах езды, предлагает развитую инфраструктуру города (магазины, рестораны и кафе, супермаркет, аптеки, банки, рынок, школа и детские сады, и многое другое).
У проекта превосходные инвестиционные возможности от сдачи апартаментов в аренду и для комфортного и современного проживания на Средиземноморье.
-
Центральная спутниковая система
-
Центральная система кондиционирования
-
Центральная интернет система
-
Фитнес центр
-
Сауна
-
Ресторан
-
Парковка
-
Охрана 24/7
-
Ландшафтный дизайн
-
Крытый бассейн с подогревом
-
Кафе
-
Зеленая зона
-
Детская площадка
-
Велопешеходные дорожки
-
Бассейн
-
Бар
35 % - 1й взнос;
На остаток предоставляется беспроцентная рассрочка на 18 месяцев.
